Úzky dom - RD 102

5-izbový poschodový dom,

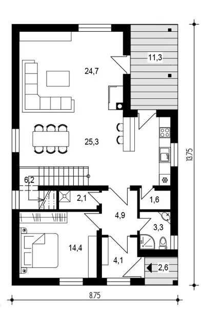
ktorý je vhodný na užšie stavebné pozemky. Vhodný terén pre tento dom je rovinatý prípadne mierne svahovitý. Dom sa dá podpivničiť.

V priestore nad obývacou izbou je „ľahká“ stropná konštrukcia vytvorená v rámci krovu, ktorá môže byť priznaná, čo navodí príjemnú atmosféru v interiéry obývacej izby.

Zastavaná plocha:120,3 m2
Úžitková plocha:144,6 m2
Obytná plocha:99,9 m2
Výška hrebeňa:+7,540 m  
Sklon strechy:35°      
Obytné miestnosti:5        
Orientačná cena výstavby:185 000 €   
Cena projektu:1 650 €   

Iné úzke domy

Skôr ako začneme: nahliadnite do spracovania vašich osobných údajov

Ak navštívite stránku, ktorá zapisuje cookies, v počítači sa vám vytvorí malý textový súbor, ktorý sa uloží vo vašom prehliadači. Ak rovnakú stránku navštívite nabudúce, pripojíte sa vďaka nemu na web rýchlejšie. Náš web vám ponúkne relevantné informácie a bude sa vám pracovať jednoduchšie.

Súbory cookies používame najmä na anonymnú analýzu návštevnosti a vylepšovanie našich web stránok. Ak si nastavíte blokovanie zápisu cookies do vášho prehliadača, je možné, že web sa spomalí a niektoré jeho časti nemusia fungovať úplne korektne. Viac info k spracúvaniu cookies.